Vida Lagoon Funes - VENTA Lote

USD 135.000 - EN VENTA

Vida Lagoon Funes - VENTA Lotes, Rosario, Santa Fe
USD 135.000 en venta
Código KP479135
Categoría Terrenos residenciales
Estado Activa
Ubicación Vida Lagoon Funes - Venta Lotes
Barrio Funes
Localidad Rosario, Santa Fe
Tipo de operación En venta
Piso No definido
Mts totales (mt²) 800.00
Tamaño terreno (mt²) 800
Ancho terreno (mts) 20.00
Largo terreno (mts) 40
Expensas usd 0.00

Descripción

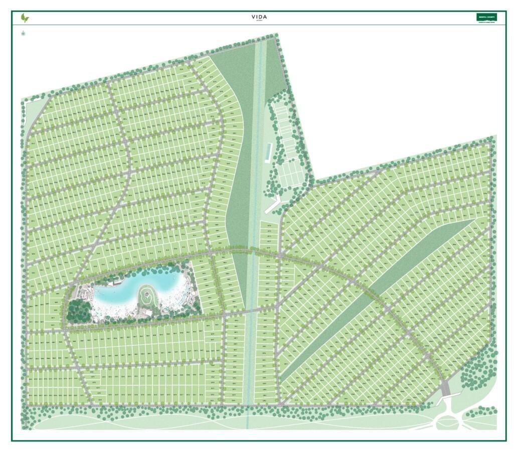
VENTA  LOTE - VIDA LAGOON FUNES SOBRE LA ZONA: Ubicado al noroeste de la ciudad de Funes, en la intersección de las calles Av. Pedro A. Ríos y José Hernández. SOBRE EL PROYECTO: El Barrio Privado Vida Lagoon es un desarrollo único en su estilo, situado en la ciudad de Funes. Con un total 90 hectáreas urbanizadas -1042 lotes que varían entre 600 y 1200 m2- y 60 hectáreas destinadas a espacios verdes.Una de sus principales atracciones es una laguna artificial cristalina de 23,300 m2, equipada con un muelle para la práctica de deportes acuáticos, inflables y playas de arena de cuarzo. La laguna emplea una tecnología avanzada para filtrar el agua, lo que asegura que sea ecológica y de bajo costo de mantenimiento. Vida Lagoon también dispondrá de una amplia gama de servicios y amenities: club house, centro de eventos, playa familiar con todos los servicios necesarios -reposeras, sombrillas y baños-, restaurante con vista a la laguna, parque natural de conservación y áreas recreativas con juegos infantiles. Además, contará con una península con mirador y espacios de estacionamiento.Las calles estarán pavimentadas y contará con servicios de luz, gas natural, agua corriente, desagüe cloacal, teléfono, internet y cable, además de seguridad las 24 hs y vigilancia. SOBRE EL TERRENO: Lote de 800 m2, cuenta con 20 metros de frente por 40 metros de fondo. Posesión inmediata.

13 Visitas al momento

¿Interesado en la propiedad?

Llamenos ó envienos sus datos
+5493416246020
WhatsApp