Pueyrredón 1101 12 A - VENTA Departamento 1 Dormitorio

EN VENTA

Pueyrredón 1101 12 A, Rosario, Santa Fe - PICHINCHA
- en venta
Código KP473924
Categoría Departamentos
Estado Activa
Ubicación Pueyrredón 1101 12 A
Zona PICHINCHA
Localidad Rosario, Santa Fe
Tipo de operación En venta
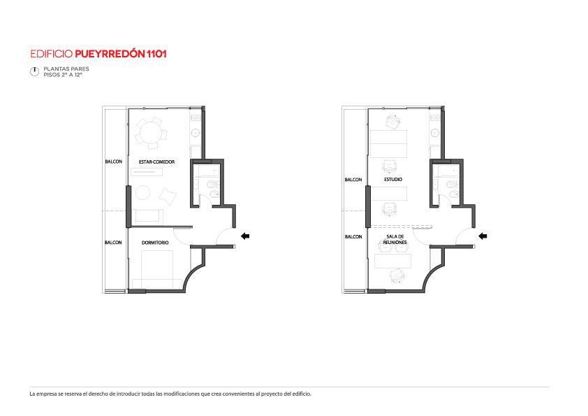
Ambientes 2
Dormitorios 1
Baños 1
Piso 12
Pisos en el edificio 12
Mts totales (mt²) 51.93
Mts cubiertos (mt²) 41.17
Ancho terreno (mts) 0.00
Expensas usd 0.00

Descripción

VENTA DEPARTAMENTO 1 DORMITORIO - PICHINCHA, ROSARIO SOBRE LA ZONA:  Ubicado en el Barrio de Pichincha, cercano a zona de paseos, gastronomía, parques y el río. SOBRE EL EDIFICIO: El edificio cuenta con quincho, parrilla, pileta, solarium con terrazas verdes, laundry y bicicletero en PB. Tiene sistema de monitoreo las 24 horas. Ha recibido numerosos premios y menciones a nivel internacional por su diseño y arquitectura. SOBRE EL INMUEBLE: Departamento ubicado en el piso 12, compuesto por 1 dormitorio, balcón en doble altura al frente, estar-comedor con cocina integrada y equipada con anafe eléctrico, pileta de acero inoxidable y grifería monocomando. Posee 1 baño completo.Entre sus características principales se destacan: interiores de hormigón visto, aberturas de aluminio anodizado, instalación de agua caliente central, equipo de aire acondicionado frío/calor y pisos de ardosia, piedra natural. Amenities: quincho, piscina y solárium con terraza verde en los dos últimos pisos. Laundry en subsuelo.

14 Visitas al momento

¿Interesado en la propiedad?

Llamenos ó envienos sus datos
+5493413467608
WhatsApp