Ituzaingo 1852 06 01 - VENTA Departamento Dúplex 4 Dormitorios con Cochera

USD 601.370 - EN VENTA

Ituzaingo 1852 06 01 - VENTA Departamento Dúplex 4 Dormitorios con Cochera, Abasto, Rosario, Santa Fe
USD 601.370 en venta
Código KP473759
Categoría Departamentos
Estado Activa
Ubicación Ituzaingo 1852 06 01 - Venta Departamento Dúplex 4 Dormitorios Con Cochera
Barrio Abasto
Localidad Rosario, Santa Fe
Tipo de operación En venta
Ambientes 5
Dormitorios 4
Baños 2
Baños de servicio 1
Estacionamientos 1
Piso No definido
Pisos en el edificio 6
Mts totales (mt²) 149.50
Mts cubiertos (mt²) 141
Mts no cubiertos (mt²) 77.5
Ancho terreno (mts) 0.00
Año de construcción 2028
Expensas usd 0.00

Descripción

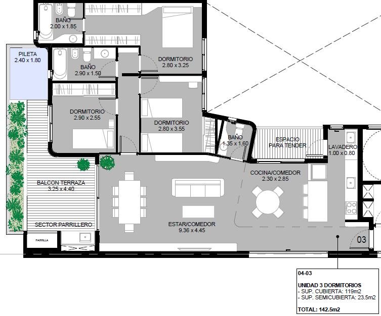
VENTA DEPARTAMENTO 4 DORMITORIOS CON COCHERA - BARRIO ABASTO, ROSARIO SOBRE LA ZONA: Ubicado en el barrio Del Abasto, un sector en pleno auge de la ciudad, rodeado por uno de los parques con mayor extensión de Rosario. A metros del Parque Independencia y su lago.-A 150 mts del Parque Independencia-A metros del Club Gimnasia y Esgrima-A 350 mts de la zona gastronómica de Av. Pellegrini-A 10 cuadras del Hospital Privado de Rosario (HPR)-Próximo al centro de la ciudad, con la ventaja de situarse en un barrio tranquilo SOBRE LA EDIFICACIÓN:  Este innovador edificio residencial redefine el concepto de vivienda de lujo en Rosario. Destacándose por sus unidades concebidas como auténticas residencias en altura, el edificio garantiza un estilo de vida exclusivo con todas las facilidades al alcance de la mano. Desde amplias unidades de un dormitorio hasta lujosos departamentos de cuatro dormitorios, cada residencia ha sido diseñada para satisfacer los más exigentes estándares de calidad. El proyecto cuenta entre otros servicios, con:- Espacio para bicicletas- Gimnasio totalmente equipado- Balcones aterrazados equipados con piscina y parrillero, con orientación Norte.- Terraza de uso común equipada con amenities premium, que incluyen piscinas, quincho y gimnasio. SOBRE EL INMUEBLE: Departamento dúplex compuesto por cocina, living comedor, 2 baños completos, 1 toilette, 4 dormitorios -uno de ellos con  vestidor-, lavadero sectorizado, área para escritorio y balcón amplio al frente. Cuenta con cochera de 11,50 m2, unidad SS13. ENTREGA DICIEMBRE 2028 PRECIO DE LISTA USD USD 601.370 - CONTADO USD 546.700 CONSULTAR POR FINANCIACIÓN EN DÓLARES O PESOS

12 Visitas al momento

¿Interesado en la propiedad?

Llamenos ó envienos sus datos
+5493416775752
WhatsApp