Moreno 1152 - VENTA Casa Interna 3 Dormitorios

USD 270.000 - EN VENTA

Moreno 1152 - VENTA Casa Interna 3 Dormitorios, Centro, Rosario, Santa Fe
USD 270.000 en venta
Código KP473614
Categoría Casas
Estado Activa
Ubicación Moreno 1152 - Venta Casa Interna 3 Dormitorios
Barrio Centro
Localidad Rosario, Santa Fe
Tipo de operación En venta
Dormitorios 3
Baños 2
Estacionamientos 1
Piso No definido
Pisos en el edificio 2
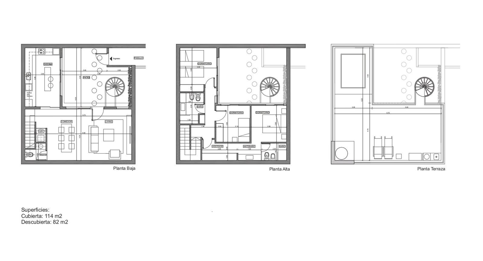
Mts totales (mt²) 195.00
Mts cubiertos (mt²) 114
Mts no cubiertos (mt²) 82
Ancho terreno (mts) 0.00
Expensas usd 0.00

Descripción

VENTA CASA INTERNA 3 DORMITORIOS CON PILETA Y COCHERA OPCIONAL - CENTRO, ROSARIO SOBRE LA ZONA: Ubicado sobre calle Moreno, entre San Juan y Mendoza,  en zona estratégica del centro de Rosario. Zona dinámica y accesible, rodeada de locales comerciales, servicios, restaurantes y espacios de entretenimiento. Amplia conexión de transporte público. SOBRE EL INMUEBLE: Vivienda de pasillo compuesta de 4 unidades de vivienda en total. Esta desarrollada en 2 plantas y se compone en planta baja por ingreso a través de amplio patio con jardín que aporta luminosidad y ofrece un agradable espacio al aire libre, gran living-comedor, cocina separada con isla y equipada con amoblamiento completo, cómodo toilette de recepción y lavadero sectorizado discreto y funcional.En la planta alta se ubican 1 dormitorio principal en suite con vestidor, 2 dormitorios secundarios con placares empotrados de diseño contemporáneo, con gran capacidad de guardado y 1 baño completo con revestimientos, sanitarios y griferías de primera calidad.La unidad ofrece además acceso a terraza con piscina y sector verde, con acceso desde el patio de planta baja, lo que asegura una buena circulación entre los distintos sectores de la vivienda. Este espacio funciona tanto para el descanso como para actividades de encuentro.Superficie cubierta de 144 m² y 82 m² de superficie descubierta. Detalles de terminaciones: - Vivienda construida desde sus cimientos, con estructura de hormigón armado, mamposteria en ladrillos - Yeseria y/o placas en paredes, y cielorraso suspendido de durlock - Cerramientos de aluminio de alta prestación, vidrios de DVH - Puerta de ingreso de seguridad. Puertas interiores de alta prestación con marcos y hoja de WPC - Pisos de porcelanato, revestimientos y zócalos EPS de primera línea - Pre instalación de aires acondicionados y de radiadores e instalación de caldera - Alacena y bajo mesada de diseño con iluminación en mobiliario. Mesada de silestone o similar calidad.Bacha de acero inoxidable con griferías de primera línea - Espacio disponible para purificador y/o extractor de cocina. Horno eléctrico y anafe a gas embutido - Placares completos con frentes corredizos o de abrir. Diseño interior con estantes, cajones y barrales. - Los baños cuentan con mampara en sus duchas, vanitory completo y espejos. Sanitarios y griferías de primera marca - Jardín con intervención de paisajismo en planta baja - En la terraza se ubica una piscina exclusiva en fibra de vidrio PRFV y cesped sintético - Medidor de agua independiente, tablero eléctrico independiente y servicio de Litoral Gas habilitado - Climatización y agua caliente prevista por caldera - Central de control: pantalla táctil para controlar luces, acondicionamiento, cámaras de seguridad, portero,sensores, entre otros. Integración de comando por voz, tipo Alexa o Google assistant - Sistema de iluminación interior y exterior: circuitos de iluminación on/off independientes - Cámaras se seguridad y sensores diseñadas en función al proyecto. Frente de portero con cámara - Renovación del pasillo en su totalidad. Nuevas instalaciones y nueva puerta de seguridad de ingreso COCHERA OPCIONAL  USD 25.000ENTREGA MARZO 2027

17 Visitas al momento

¿Interesado en la propiedad?

Llamenos ó envienos sus datos
+5493416775752
WhatsApp